Ganztagesschule Grundschule Sichelschule
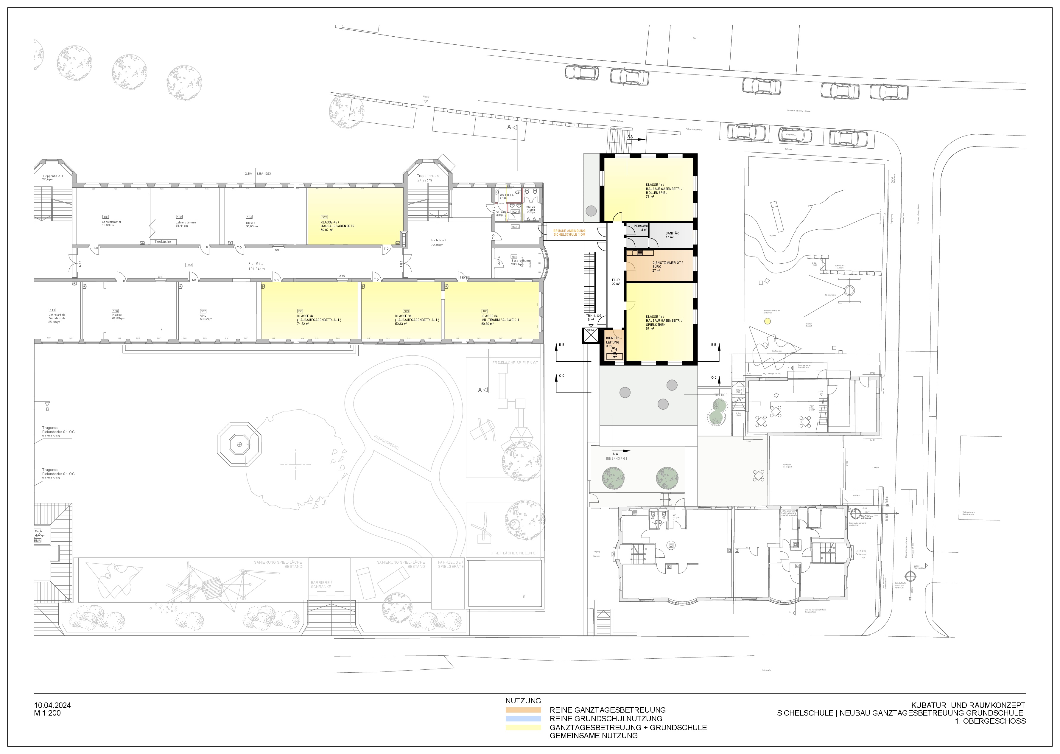
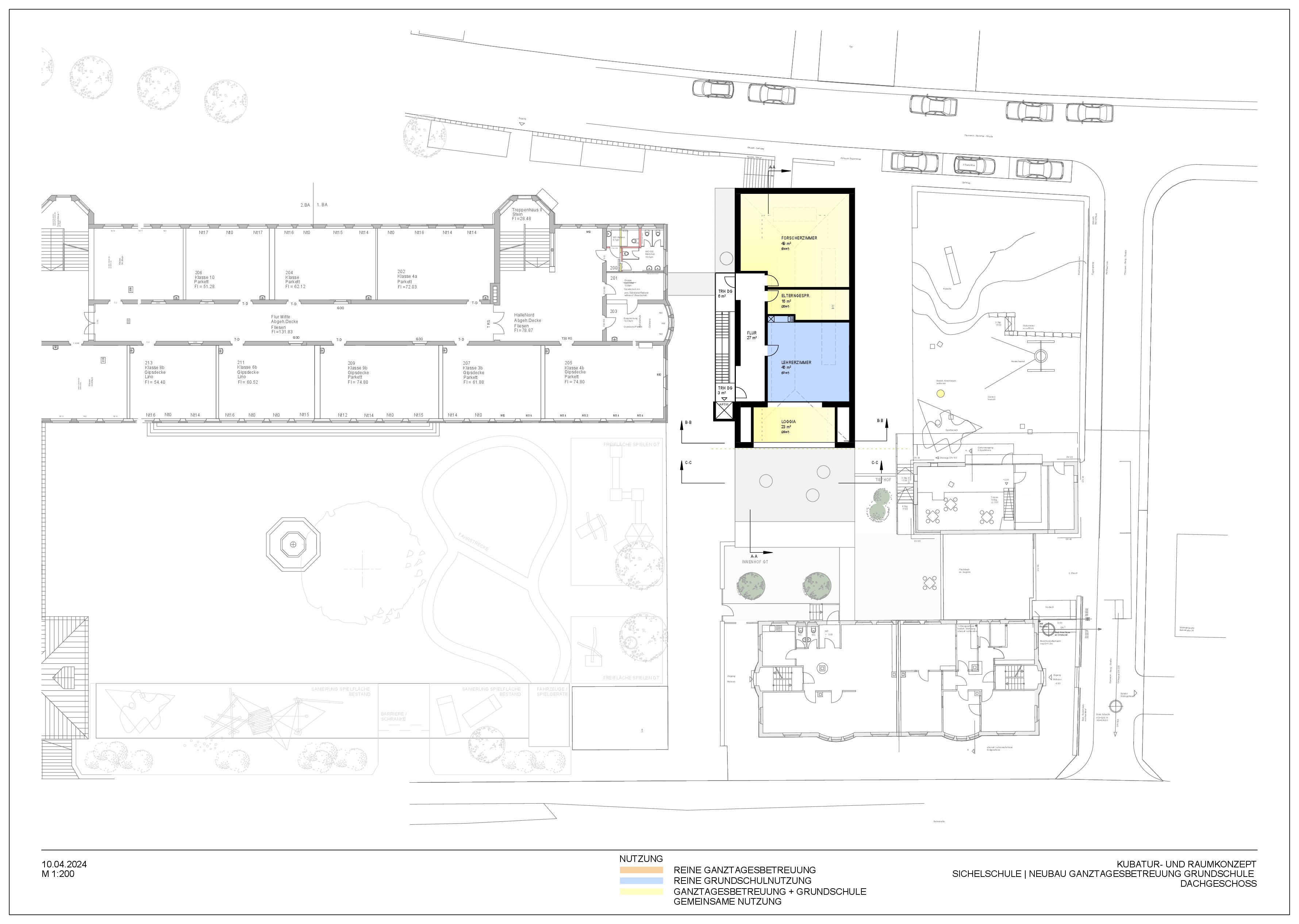
Auf dem Areal der denkmalgeschützten Sichelschule wird ein freistehender Neubau nördlich, zwischen Schulhauptgebäude und dem
Kindergarten Hermann-Berg-errichtet, für die Betreuung der Grundschulkinder als Ganztagesschule und als räumliche Erweiterung der Grundschule selbst.
Es handelst sich hierbei um ein teilunterkellertes 5-geschossigen Gebäude inkl. Dachgeschoss, das das bestehende Gebäudeensemble verbindet und den Hof schließt.
Das Gebäude entwickelt bzw. orientiert sich höhentechnisch entlang des Hanggrundstücks mit der vorhandenen Bebauung mit und fügt sich optimal ein.
Der Neubau wird über eine Brücke in zwei Geschossen an das Hauptgebäude angebunden. Diese Verbindung schafft, über den Aufzug im Neubau, einen barrierefreien Zugang zu den beiden Obergeschossen der Sichelschule. Außerdem werden die bestehenden Betreuungsräumlichkeiten im Lehrerwohngebäude mit in das räumliche Konzept integriert und über den Innenhof überdacht angebunden.
Die Konstruktion ist als Hybridbau angedacht.
Es werden hier Themenräumen zum Spielen und Aufhalten der Kinder entstehen, eine Aula / Musiksaal, 4 Klassenzimmer samt dem Lehrerzimmer für die Grundschule sowie die notwendigen Nebenräumen.
Bedienhilfe aufrufen









